看圖紙(企業版)是為工程設計相關領域企業用戶定制打造的專業級圖紙瀏覽打印軟件, 支持AutoCAD的圖紙文件(DWG/DWF/DXF,R14-2018格式)、MicroStation DGN(V6/7) 和PDF文件脫離CAD環境的快速瀏覽和打印脫離CAD環境的快速查看、簡單編輯和批量打印。

看圖紙是專為工程設計相關人員設計的工具軟件。 提供常用圖片文件(psd、bmp、gif、png、jpg、jpeg、tif、tiff)、 AutoCAD DWG/DXF文件(支持版本為R14-2016)和PDF文件脫離 AutoCAD環境的快速瀏覽和打印。 CADSee Plus是一款新型的DWG、圖形文件管理和瀏覽軟件。Metro界面風格,樣式美觀,體積小巧。 自帶常用字體庫,實現圖形文件瀏覽和管理。 內置多格式圖形瀏覽器實現了類ACDSee的DWG/DXF文件縮略圖預覽效果;支持對圖形文件 的拷貝、 粘貼、剪切和刪除等管理操作。既提供了圖形平移、全屏、縮放等一般功能, 又提供了獨具特色的雙圖同步瀏覽功能,并支 持全屏模式,方便設計和審核人員進行雙圖對比查看,是工程設計人員必備的看圖工具!

功能說明
支持圖紙文件管理
看圖紙軟件提供類似Windows資源管理器的管理界面,實現對圖紙文件和文件夾的復制、剪切、粘貼、刪除、改名等操作; 圖紙文件可以按照縮略圖模式顯示,支持對縮略圖大小的定義;軟件同時提供比較近瀏覽文件和文件夾,方便快速打開歷史文件; 軟件提供文件夾收藏功能,實現常用文件夾的快速訪問。

支持瀏覽Dwg\Dwf\Dxf\Pdf\Psd\Bmp\Gif\Png\Jpg\Tif文件
軟件對圖紙文件(Dwg\Dwf\Dxf)、圖片文件(\Psd\Bmp\Gif\Png\Jpg\Tif)以及PDF文件提供瀏覽支持;提供內置圖紙文件瀏覽 器,實現圖紙的平移、全屏、縮放等功能,鼠標操作模式與AutoCAD類似;

支持圖紙簡單編輯
軟件提供對DWG文件的簡單編輯功能,可以對已有的實體進行移動、刪除等操作;可以修改文字實體的顏色和內容;可新增單線、多線、圓和文字等常見實體。 本功能僅對企業注冊用戶開放。

支持圖紙全文搜索功能
軟件提供對DWG文件的全文檢索功能。既可以快速模糊搜索某個文件夾下所有DWG圖紙文件是否包含關鍵詞;也可以搜索到圖塊 內容。本功能僅對企業注冊用戶開放。

支持圖紙批量打印功能
軟件提供類似AutoCAD的圖紙打印功能,可設置打印選擇、紙張設定、旋轉方向、打印比例等參數;打印文件過程中可進行預 覽,同時提供精細打印和快速打印兩種打印模式;對于一個文件內有多幅圖框的圖紙,軟件提供批量打印功能,實現多圖幅一次性打印,提供打印效率。 本功能僅對企業注冊用戶開放。

支持圖紙格式批量轉換
軟件提供將DWG圖紙文件批量轉換為其它格式文件的功能,包括CAD圖紙版本轉換功能、圖紙轉換為圖片格式、DWF和PDF文件功能; 本功能僅對企業注冊用戶開放。

支持打開DGN圖紙
V6.5實現對MicroStation V6/7的DGN圖紙打開,可以保存為DWG圖紙。本功能僅對企業注冊用戶開放。

支持觸摸屏和Win8平板電腦
在Win7/Win8系統下,支持對觸摸顯示器的手勢支持,如平移、縮放、旋轉等;同時支持在Win8平板下的各種手勢操作。

更新日志
V7.1.0 Bulid 180720
更新日志:
01、【瀏覽】提供圖紙打開極速模式(選項中可設置)
02、【瀏覽】修復PDF打開問題
03、【瀏覽】用戶界面進一步優化
04、【瀏覽】升級圖形驅動,支持更多CAD實體顯示
05、【編輯】編輯模式選中實體,自動切換實體所在圖層
06、【網盤】支持Win10下OneDrive文件打開
07、【審圖】新增審圖系列工具
文件信息
文件大。13929584 字節
文件說明:看圖紙(CADSee Plus)安裝
文件版本:7.1.0.1
MD5:0883A9CC65835999D35948A0188AABA1
SHA1:6C39BD7ED738FA4FDB7519AD2339AC7FFAEDBCFA
CRC32:567BAB3A
首先我們需要下載看圖紙,下載解壓后雙擊“CADSeeV70-Chs.exe”出現安裝界面:

進入看圖紙安裝向導。我們要閱讀看圖紙的重要信息。請仔細閱讀以下許可協議,如果您不同意任何一點,請立即停止使用此軟件。閱讀完成之后點擊我接受協議;

看圖紙的默認安裝路徑為C:\Program Files\CADSeePlus。安裝看圖紙至少需要55.4MB的磁盤空間。點擊瀏覽可以自定義軟件安裝路徑;

接下來我們要選擇看圖紙的開始菜單快捷方式存放的文件夾路徑;

安裝向導已經準備好可以安裝看圖紙到電腦中了。點擊安裝就可以開始將看圖紙安裝到電腦中;

安裝向導正在將看圖紙安裝到電腦中。安裝看圖紙需要一定的時間。請耐心等待軟件安裝完成;

看圖紙安裝成功。這時候安裝向導會提示軟件安裝成功。點擊完成就可以退出安裝向導,馬上運行看圖紙和打開ReadMe.txt文件。

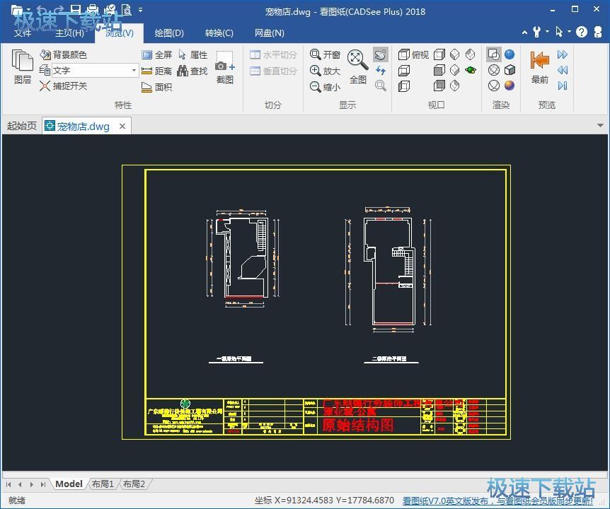
看圖紙是一款好用的電腦CAD圖紙瀏覽工具。使用看圖紙可以輕松查看電腦中的CAD圖紙;

極速小編這一次就給大家演示一下怎么使用看圖紙來瀏覽查看電腦中的CAD圖紙吧。點擊看圖紙主界面頂部功能欄中的打開,就可以打開文件瀏覽窗口,導入CAD圖紙;

在文件瀏覽窗口中,根據CAD文檔的存放路徑,找到想要使用看圖紙打開瀏覽的CAD圖紙。用鼠標點擊選中想要使用看圖紙打開的CAD圖紙,然后點擊打開,就可以將CAD圖紙導入到看圖紙中,

成功使用看圖紙打開CAD圖紙,我們這時候就可以在看圖紙中看到我們打開的CAD圖紙文件的圖紙內容;

極速小編想要使用看圖紙測量圖紙中的距離。點擊看圖紙主界面頂部工具欄中的距離,打開圖紙測量功能;

首先我們點擊選中想要對CAD圖紙測量的起始點,用鼠標點擊就可以確定距離測量起始點;

接下來,我們就可以設置距離測量的終點。用鼠標點擊圖紙想要作為距離測量的終點,就可以完成設置圖紙距離測量;

圖紙距離測量完成,這時候我們可以看到看圖紙會彈窗提示測量結果?磮D紙會提示兩點之間的距離為1955.006292。點擊確定,就可以完成圖紙距離測量。